Revit 作为 BIM 最常用的软件产品之一,有大量的教程和在线课程帮助我们学习并精通这款软件,彻底理解和使用里面的功能。您是否想学习其功能,以便日后在项目中正确使用 Revit ?您是否了解如何将 Revit 文件与 AutoCAD 和 3DS MAX 互相转换?您是否知道如何渲染或展示模型效果?文中这些课程能够保证你如愿以偿。
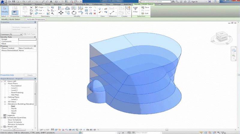
用 Autodesk Revit 建基础体块· 免费课程
Revit入门课程,您会通过设计一个基础建筑来了解界面。针对想要使用Revit的初学者和专业建筑师。
https://www.udemy.com/revit_3dtraining_quickstart/

来自 Mass Building using Autodesk Revit / Udemy.com
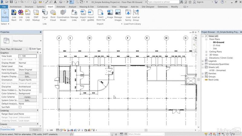
用 Revit Structure 做全套项目的基础建模 · 免费教程
这套教程的重点是了解和设计柱子、横梁、地基、地板和楼板等结构。针对想要学习并深化 Revit 功能的初学者和中级学员。
https://www.udemy.com/rst_basics/

来自 Full Project Using Revit Structure - Basic Modeling / Udemy.com
学习 Autodesk Revit Architecture 2016 · 付费课程
该课程专门针对零基础学员,课程会详细介绍软件界面、建模方法、放置和调整一些基本的建筑课程。
https://www.udemy.com/learning-autodesk-revit-architecture-2016/

来自 Learning Autodesk Revit Architecture 2016 / Udemy.com
学习 Autodesk Revit MEP 2016 · 付费课程
初学者可以在这个课程中学到机械、电器和管道系统的基本设计,不需要有软件基础。
https://www.udemy.com/learning-autodesk-revit-mep-2016/

来自 Learning Autodesk Revit MEP 2016 / Udemy.com
为初学者打造的 Revit 2018 建筑实践课程 · 付费课程
这个课程针对学生和初学者,从基础出发,由浅入深,最后建立一个两层楼的住宅模型。
https://www.udemy.com/revit2017/

来自 Revit 2018 Architectural Course For Beginner With Project / Udemy.com
Revit Architecture 2016 高级课程 · 付费课程
本课程侧重于已经熟悉 Revit 的建筑师,从最基本的工具开始,教您如何定义 Family 类别和参数,如何使用复杂的建筑元素,如何渲染,以及如何展示您的作品等等。
https://www.udemy.com/advanced-revit-architecture-2016-training/

来自 Advanced Revit Architecture 2016 Training / Udemy.com
Revit Structure 2018 详细课程 · 付费课程
本课程详细介绍完整的结构项目流程,如何建立地基、柱子、梁、地板,承重和组合承重结构,以及如何导出模型并展示平面图。
https://www.udemy.com/advanced-revit-architecture-2016-training/

来自 Revit Structure 2018 from Zero to Hero / Udemy.com
Revit 技巧介绍 · 付费课程
本课程针对有 Revit 基础的学员,介绍高效建模的小技巧,并传授新功能。
https://www.udemy.com/revit-tips-tricks/

来自 Revit Tips & Tricks / Udemy.com
Revit 室内设计课程 · 付费课程
本课程面向中级用户,专门针对室内设计。除了创造家具和给空间附材质和饰面以外,还将对 Revit Families 进行建组。
https://www.lynda.com/Revit-tutorials/Revit-Interior-Architecture/642465-2.html

来自 Revit for Interior Architecture / Lynda.com
3ds Max与 Revit配合使用介绍 · 付费课程
本课程介绍 Revit 和 3ds Max 的配合使用,详细介绍如何导出并渲染建筑模型。针对已经使用过这两款软件的用户。
https://www.lynda.com/3ds-Max-tutorials/3ds-Max-Revit-Integration/642466-2.html

来自 3ds Max: Revit Integration / Lynda.com
Revit: 导入 CAD 图的高级技巧 · 付费课程
该教程介绍如何将AutoCAD画的图导入或关联到Revit中,包括图层和楼层的使用等。
https://www.lynda.com/Revit-tutorials/Revit-Advanced-Techniques-Importing-CAD-Drawings/606058-2.html

来自 Revit: Advanced Techniques for Importing CAD Drawings / Lynda.com
Revit 渲染/视觉表达 · 付费课程
本课程主要教授Revit的模型表达,包括材料、颜色、贴图、三维视图和其他表现手法。
https://www.lynda.com/Revit-tutorials/Revit-Visualization/622068-2.html

来自 Revit for Visualization / Lynda.com
Revit: 技巧窍门和疑难解答 · 付费课程
本课程适合所有类型用户的Revit 2017使用技巧,提供一些软件技术改进技巧和解决典型问题的提示和技巧。
https://www.lynda.com/Revit-tutorials/Revit-Tips-Tricks-Troubleshooting/386630-2.html

来自 Revit: Tips, Tricks, and Troubleshooting / Lynda.com
Revit 2019: 建筑基础培训(英制单位) · 付费课程
本课程不需要软件基础,主要介绍如何使用Revit 2019,熟悉界面,学习建模,如何表达信息,以及如何与其他软件例如PDF和AutoCAD配合使用。
https://www.lynda.com/Revit-tutorials/Revit-2019-Essential-Training-Architecture-Imperial/697711-2.html

来自 Revit 2019: Essential Training for Architecture (Imperial) / Lynda.com
60分钟60个Revit小技巧 · 免费课程
这是一个一小时快速课程,介绍使用Revit时能够提高工作效率的一些技巧,侧重于建模和绘图。
http://au.autodesk.com/au-online/classes-on-demand/class-catalog/classes/year-2017/revit/as125540#chapter=0

来自 AS125540: Over 60 Revit Tips in 60 minutes / Autodesk.com
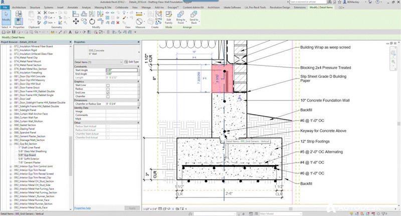
在 Revit 中创建智能细节 · 免费课程
本课程面向所有类型的用户,介绍如何针对特定的用户创建智能细节。
http://au.autodesk.com/au-online/classes-on-demand/class-catalog/classes/year-2017/revit/lo-aec19#chapter=0

来自 AS122882: Creating Intelligent Details in Revit / Autodesk.com
用Revit做标准组件设计,预制和重复排版 · 免费课程
这门高级课程侧重于预制结构、数据管理和数据监控等功能,这些功能可以应用到一些大型的项目中,例如医院、学校和酒店。
http://au.autodesk.com/au-online/classes-on-demand/class-catalog/classes/year-2017/class-detail/as122882#chapter=0

来自 AS124409: Revit for modular design, prefabrication and repetitive layouts / Autodesk.com
你可能会错过的30个Revit改进功能 · 免费课程
Revit每年会发布大量的更新,本课程介绍了一些您可能错过的工具。
http://au.autodesk.com/au-online/classes-on-demand/class-catalog/classes/year-2017/revit/as123243#chapter=0

来自 AS123243: 30 Revit Productivity Enhancements You've Missed! / Autodesk.com
更多相关课程请查看 Udemy, Lynda, 以及 Autodesk 官方网站。
编辑:韩爽 岑靖茜;翻译:张箫笛
点击“阅读原文”在 ArchDaily 网站浏览更多最新消息。
已展示全部
更多功能等你开启...


