? Cristobal Palma / Estudio Palma
木材是人类用于建造遮风避雨的家园庇护所的最为古老的材质之一。木材不仅作为结构功能,具有极强的抗震作用,而且还提供了室内热舒适性,以及给与建筑一种温暖的外观和感觉,并与自然环境相融合。通过如下21张剖面施工图,欣赏木结构材质令人难以置信的构造方式。
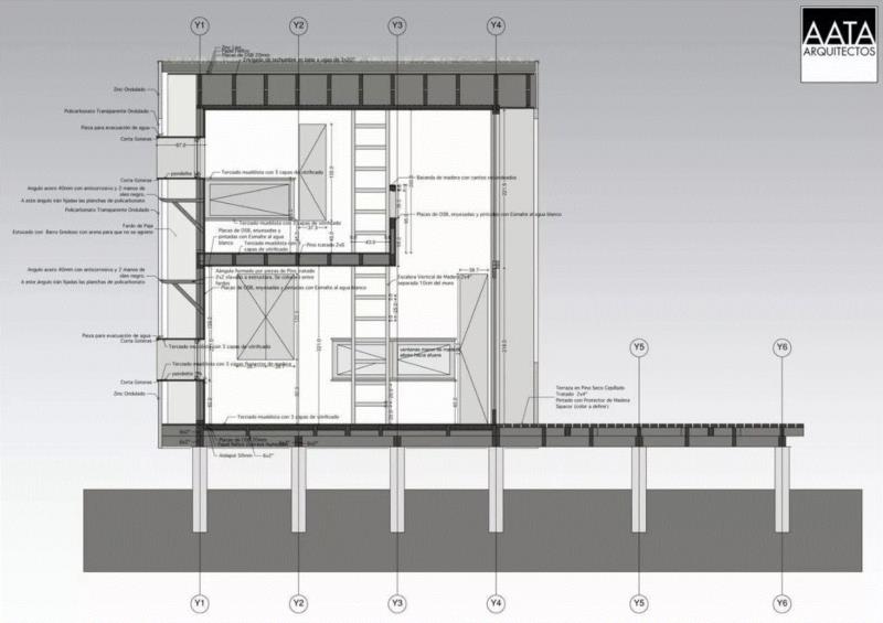
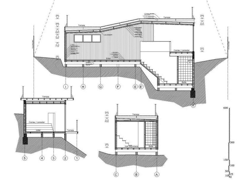
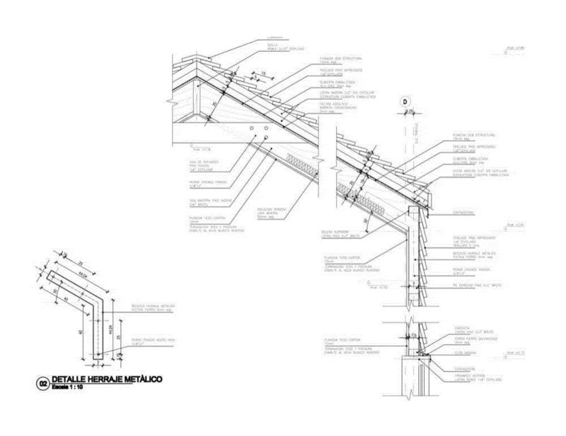
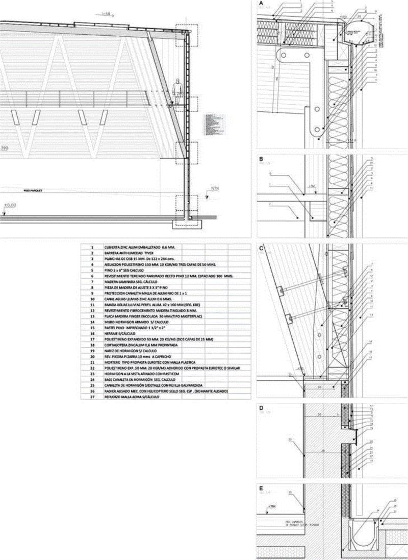
+ 客居小屋 / AATA Asociados

? impulsando.com

Casa de Invitados / AATA Asociados
+ El Palqui校园别墅 / José Cruz & Asociados

? Juan Purcell y Ana Turell

Escuela Villa El Palqui / José Cruz & Asociados
+ 塔克纳山海滨别墅 / dRN Arquitectos

? Felipe Camus

Casa Cerro Tacna / dRN Arquitectos
+ BIP 计算机大楼 / Alberto Mozo

? Cristobal Palma / Estudio Palma

BIP Computers / Alberto Mozó
+ 洛坎特罗斯山间庇护所/ dRN Arquitectos

? Felipe Camus

Refugio Los Canteros / dRN Arquitectos
+ Pirque 住宅 / 332 Arquitectos

Cortesía de 332arquitectos

Casa en Pirque / 332 Arquitectos
+ Lodge La Baita / Gubbins Arquitectos, Polidura + Talhouk Arquitectos

? Pedro Gubbins, Gonzalo Puga, Polidura + Talhouk Arq

Lodge La Baita / Gubbins Arquitectos, Polidura + Talhouk Arquitectos
+ Tunquen住宅 / Elton + Leniz – Alvaro Ramirez

? Natalia Vial

Casa Tunquén / Elton + Leniz - Alvaro Ramírez
+ Roof 住宅(Casa Techo) / Tezuka Architects

? Katsuhisa Kida / FOTOTECA

Roof House (Casa Techo) Tezuka Architects
+ 巴塔哥尼亚庇护所 / Armando Montero & Diego Labbé

? Armando Montero

Refugio de Guías en Melimoyu / Armando Montero & Diego Labbé
+ Pochoco山顶住宅 / Carre?o Sartori Arquitectos

? Mario Carre?o Zunino

Casa en el Cerro Pochoco / Carre?o Sartori Arquitectos
+ Irma Cabezas小木屋 / Diego Mendoza Valenzuela

? Diego Mendoza

Caba?a Irma Cabezas / Diego Mendoza Valenzuela
+ Maintencillo住宅 / Jonas Retamal

Cortesía de Jonas Retamal

Casa Maitencillo / Jonas Retamal
+ Morerava住宅 / AATA Arquitectos

? AATA Arquitectos

Caba?as Morerava / AATA Arquitectos
+ Lago Ranco桑拿房 / Panorama

? Panorama

Sauna en Lago Ranco / Panorama
+ Gauayacán住宅 / Matias Ruiz Malbran

? Matias Ruiz M

Casa Guayacán / Matias Ruiz Malbran
+ Muelle住宅 / ARQUIpielago

? Stefan Bartulin Cortese

Casa Muelle / ARQUIpielago
+ Tunquen住宅 / OFArquitectos (En Construcción)

? OFArquitectos

Casa en Tunquen / OFArquitectos (En Construcción)
+ Curacaví住宅 / Sebastián Bravo (En Construcción)

? Sebastián Bravo

Casa en Curacaví / Sebastián Bravo (En Construcción)
+ 旧金山Javier学校 / Martin Hurtado Covarrubias & Sergio Quintana Felice Arquitectos Asociados

Cortesía Martín Hurtado Arquitectos

Colegio San Francisco Javier / Martin Hurtado Covarrubias & Sergio Quintana Felice Arquitectos Asociados
+ Traiguén住宅原型 / Arquitectos Centro de Innovación y Desarrollo de la Madera CORMA-UC: Paula Martínez y Rodrigo Cepeda

Cortesía del Centro de Innovación y Desarrollo de la Madera Corma UC

Prototipos de Vivienda Traiguén Arquitectos Centro de Innovación y Desarrollo de la Madera CORMA-UC / Paula Martínez y Rodrigo Cepeda

编辑:韩爽 黄馨仪;翻译:舒岳康
点击“阅读原文”在ArchDaily网站浏览更多最新消息。
已展示全部
更多功能等你开启...


