? 陈颢

? 夏至
船长之家位于福建省连江县黄岐半岛东北端,与台湾马祖列岛隔海相望。改造前该建筑常年经受海风和雨水的侵蚀、砖混结构单薄存在一定的安全隐患;海边潮湿易腐的气候条件也造成了室内大面积漏水。同时,船长一家人希望在现有条件下加建三层,以更好地适应他们目前的生活需求。

? 夏至
改造前全景 图片来自直向建筑

改造前立面 图片来自直向建筑
设计是从针对结构加固方式的思考开始的。经过一系列的对比,我们最终选择了在保留原有砖墙结构的基础上添加一层12cm混凝土墙的方法。这一策略不仅满足了加固和加建的基本需求,同时也提供了更多可以改善空间品质的可能性。

模型

? 夏至
空间格局
新的结构介入使房屋的空间格局得以重新调整,原有的砖墙可以适当地被拆除或移位:我们将原有一二层临海的两个卫生间移动到了靠近邻居家的一侧,在改善通风和采光情况的同时,也使客厅、餐厅与主卧室获得了更好的观赏海的视线。

? 陈颢
? 陈颢

? 陈颢
? 陈颢
“窗系统家具”
窗的位置和形式得以相对自由地梳理。突出墙面的新混凝土窗套一方面为开启扇提供遮蔽,隔绝沿外墙流动的雨水;另一方面洞口的厚度被转而设计成窗系统家具。窗作为“媒介”置于自然与室内空间之间,与家具和人的行为结合,不再是简单的墙体上开洞。

草图

草图

窗系统家具

? 陈颢

? 夏至

? 陈颢
拱
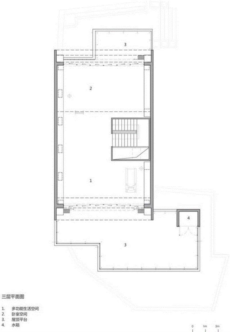
我们选择拱作为三层的结构形态出于几个主要原因。它是两边承重墙向上汇聚自然生成的结果;它的形态有利于屋顶的迅速排水,最大程度地降低了漏水和渗水的可能性;它天生具有方向性,在空间两端连接了两片性格迥异的海,人置身其中视线一边是喧嚣的港口,一边是宁静的大海。船长一家信仰基督教,三层的拱也蕴含了宗教空间的隐喻,相对于一二层的生活空间更具有精神意义。

草图

? 陈颢

? 陈颢

? 陈颢

? 陈振强
改造后的船长之家于村落“既融入又跳出”:拱自身具备谦卑、内敛的形态不给人以过分侵略或支配的感觉,其曲线形态又区别船长之家于周边任何一个建筑。最终,希望我们的改造给一家人提供更多有质量的生活空间,赋予他们生活的尊严,同时也能成为他们家庭情感的载体。

? 夏至

? 陈颢

区域定位总图

分析图

改造前 一层平面图

改造后 一层平面图

改造前 二层平面图

改造后 二层平面图

改造前 三层平面图

改造后 三层平面图

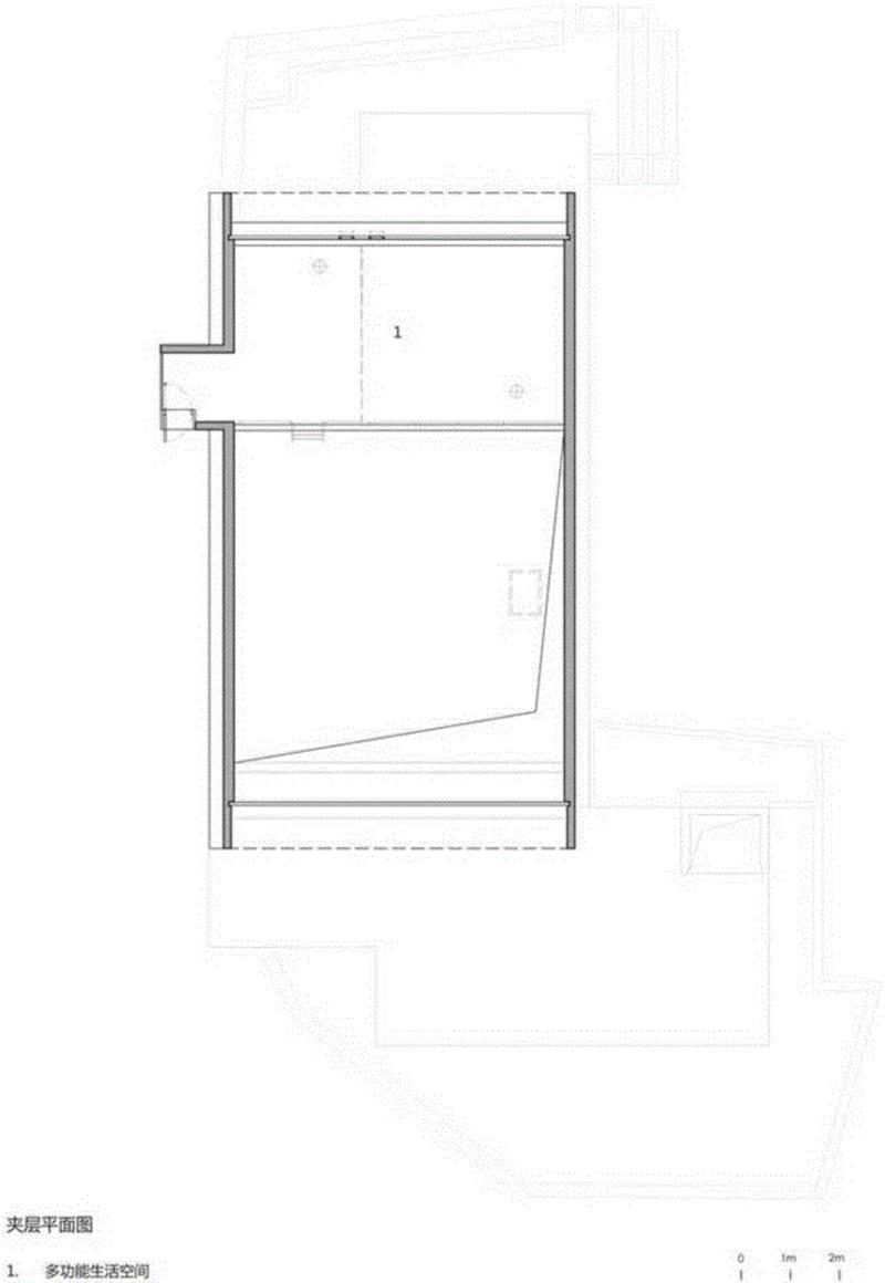
改造后 夹层平面图

剖面图

剖面图
剖面图

? 陈颢
地址:福建省福州市连江县苔菉镇北茭村,中国
业主方:私人业主,上海广播电视台东方卫星频道
建筑师:直向建筑 (Vector Architects)
主持建筑师:董功
项目团队:刘晨(项目建筑师),孙栋平(建造管理),赵丹、江存裕、张钊(项目成员),陈振强、赵亮亮(驻场建筑师)
结构及设备专业:中国建筑科学研究院
结构师:肖从真,杜义欣
结构加固方式:混凝土承重墙 + 旧有砖混结构
材料:混凝土,樱桃木,竹钢,玻璃砖,肌理涂料
建筑面积:470.0 平方米
项目年份:2017
摄影师:陈颢,夏至,陈振强
编辑:韩爽 黄馨仪
点击“阅读原文”在ArchDaily网站上浏览更多最新消息。
长按二维码关注我们的微信公众号!ArchDaily是全球浏览量最大的建筑媒体,我们将每天为您提供来自世界和中国最新的建筑信息和项目情况。
感谢关注ArchDaily中国微信
网站:http://www.archdaily.cn/cn/
微信平台:ArchDailyChina
投稿邮箱:Han@archdaily.com
已展示全部
更多功能等你开启...


