点击标题下‘琅沐创意年代’一键订阅

Zaha Hadid(1950-2016)伊拉克裔英国女建筑师。1950年出生于巴格达,在黎巴嫩就读过数学系,1972年进入伦敦的建筑联盟学院AA school学习建筑学,1977年从AA Diploma毕业,获得建筑联盟学院本科学位。哈迪德的设计一向以大胆的造型出名,被称为建筑界的“解构主义大师”。这一光环主要源于她独特的创作方式。她的作品看似平凡,却大胆运用空间和几何结构,反映出都市建筑繁复的特质。她的产品设计也保持了扎哈的一贯曲线风格,以独特的造型和出奇的设计理念让人眼前一亮。
No.1 沙丘形态
《沙丘形态》融合了一系列截然不同的元素,该装置方案的每一部分都是对传统迪卡尔几何学的挑战,其多种元素水平和垂直纵横交错分布组合出三维表面,先进的三维制模技术与数码生产程序,以及创新的材料相结合使金属和树脂熔化成蜿蜒轻柔的形状,最后还原加上在英国特别预定的金桔色,你可寻觅扎哈造型中所暗示的诸多因素。














No.2 Aura -- villa malcontenta 装置设计










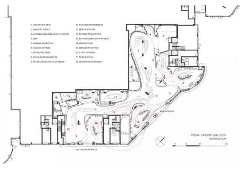
No.3 乐家卫浴伦敦展厅
这个别具一格的作品由 Zaha Hadid Architects 倾情打造,其灵感来源于不断变化的水元素,让乐家伦敦展厅也变得灵动起来。






















No.4 JS Bach Chamber音乐厅
整个音乐厅结构像飘舞的丝带般,动感十足,无色系色调则更突显其简洁时尚的魅力。















No.5 灵性的项链 Celeste
这款 Celeste 项链的造型飘逸,富有灵性,刚硬的金属材质透露出一种强悍的姿态,像是盔甲一般,流线型的轮廓优雅而时尚,独具一格的造型设计重新定义了首饰的涵义。





No.6 全英音乐奖奖杯
“英国格莱美”——全英音乐奖(Brit Awards)靠着抢戏的奖杯也赚足了眼光。传奇建筑师扎哈·哈迪德(Zaha Hadid)生平最后的作品之一。她的团队一共设计了五款奖杯,获奖的人将会拿到其中的任意一款。哈迪德想要突出3D的元素,让5款奖杯呈现动态的感觉。仔细看,奖杯就像一个戴着头盔的女郎扭动身体的不同形态,灵动的流线型设计和哈迪德的建筑作品有非常相似的风格。





No.7 水晶有机形态






No.8 扭曲的花瓶 Crevasse
Crevasse 花瓶沿着对角线稍微扭动了一下,使原来非常沉稳的方块一下子有了动感,正适合放在方方正正的房间里增添活力,同时花瓶使用了金属材质,沉稳而时尚。






No.9 蛇形画廊
蛇形画廊(Serpentine Sackler)位于河岸对面一座200年前的火药库前,扎哈·哈迪德(Zaha Hadid)翻新了旧的火药库,同时新建了一座云朵样的建筑,包含咖啡厅以及展览空间。经过规划设计后的蛇形画廊(Serpentine Sackler),将成为伦敦市中心永久性的标志建筑,这里将汇聚来自世界各地在艺术以及其他方面有造诣的人才。














No.10 D-vila室内建筑













No.11 意大利Neil Barrett店中店
Neil Barrett的设计干净利落,以完美结构与廓形著称,带有极简主义色彩,抽象的艺术造型完全融入在简约的空间环境中。










No.12 crater桌子





谢谢欣赏
欢迎投稿:info@lungmo.com
注:仅供学习与交流,转载请联系平台授权发布
创意产品小店,扫一扫,查看所有

琅沐同步平台,欢迎订阅


已展示全部
更多功能等你开启...


