
北京Coffee Craft咖啡厅 ? Lucas@ASTUDIO
来自建筑师。
UUA建筑师事务所设计的北京Coffee Craft咖啡厅探索了咖啡空间的另一种可能。设计的核心是建立一个灵活的、开放式的空间架构,创造出一个融合有咖啡厅、美术馆、秀场和会议功能的混合空间。
? Lucas@ASTUDIO
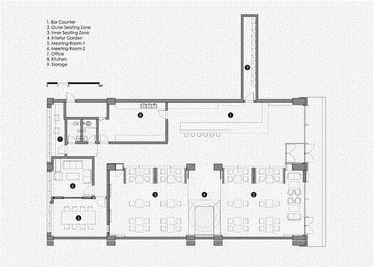
咖啡厅分为4个功能区:吧台区、座位区、会议室区和后勤区。在吧台区和座位区之间设置有8扇定制的大门。通过控制8扇大门和2组隔帘的开启与关闭,座位区实现了5种分隔方式以适应不同的活动要求。
轴测图
大样
这8扇大门是实现空间分隔的关键部件,同时也为空间带来了秩序与韵律。每扇大门重达200公斤,却可以用一根手指轻松推动。大门的一侧采用菱形的钢板网,与光线作用,形成朦胧的层叠感,同时也可以悬挂艺术品。大门的另外一侧集成有联动百叶,在举办活动时,可以关闭百叶进一步遮蔽视线。
? 周岩
? 周岩
? 周岩
吧台区的主材使用不锈钢和红铜色金属板,在冷峻与温暖之间取得平衡。吧台区的吊顶板设计表达了建筑师对于Archigram的致敬。胶囊形的吊顶板好似Instant City里的飞艇,而垂下的吊灯犹如飞艇下方悬挂着的文化设施,带来第三波精品咖啡文化。
吧台区 ? 周岩
? 周岩
? 周岩
座位区内有一座由四面镜子围合成的沙漠花园,向四周“无限延伸”,使人联想到UFO狂热年代的内华达沙漠51区,上面悬浮着镜面飞碟。源于航空设计的Vespa机车仿佛来自于外星智慧。
由四面镜子围合成的沙漠花园 ? 周岩
? 周岩
? 周岩
? 周岩
吧台一侧的墙上悬挂有一幅咖啡产区的世界地图,它又是照明开关的总控墙,每个照明开关的位置对应一个重要的咖啡产区。但是有一个例外,就是北京,这是Coffee Craft的所在地。
? 周岩
? Lucas@ASTUDIO
店面采用红铜色穿孔铝板和超白玻璃,不论在白天还是夜晚都能形成丰富的光线反射和光影层次。拱形的窗楣又在原本单调的街面上加入了跳跃的线条,成为行人关注的焦点。
红铜色穿孔铝板和超白玻璃的组合 ? 周岩
即使白天,也能形成丰富的光线反射和光影层次 ? 周岩
平面图
设计公司:UUA建筑师事务所
主创设计师:李泳征
设计团队:李泳征、李其郅、吕延峰、姜腾
摄影师:周岩,Lucas@ASTUDIO
标识设计:egg
施工单位:北京中亿装饰工程有限公司
业主:Coffee Craft
项目年份:2016
地址:中国,北京市,海淀区,高粱桥路长河湾Coffee Craft
建筑面积:400.0 平方米
编辑:尚夕云 胡天宝
点击“阅读原文”在ArchDaily网站上浏览更多最新消息。
长按二维码关注我们的微信公众号!ArchDaily是全球浏览量最大的建筑媒体,我们将每天为您提供来自世界和中国最新的建筑信息和项目情况。
感谢关注ArchDaily中国微信
网站:http://www.archdaily.cn/cn/
微信平台:ArchDailyChina
投稿邮箱:Han@archdaily.com






已展示全部
更多功能等你开启...