
© 战长恒
© 战长恒
雄安市民服务中心旨在新区建设前期为新区临时党委、筹委会及平台公司、先期入驻企业提供临时办公、生活场所。该项目为其中的周转用房及生活服务用房组团,包括多种套型的周转公寓、饮食中心、健身中心及无人超市等配套服务设施。
该项目以模式创新、技术创新、管理创新为驱动,致力于营造绿色生态宜居新城区,在贯彻落实“创新、协调、绿色、开放、共享”的新时期发展理念、追求新时代城市高质量发展、优化居住空间布局、探索混合型居住空间方面,具有积极的示范意义。设计亮点包括:
© 战长恒
© 战长恒
一、宜居宜业:舒适便捷的周转公寓创新模式
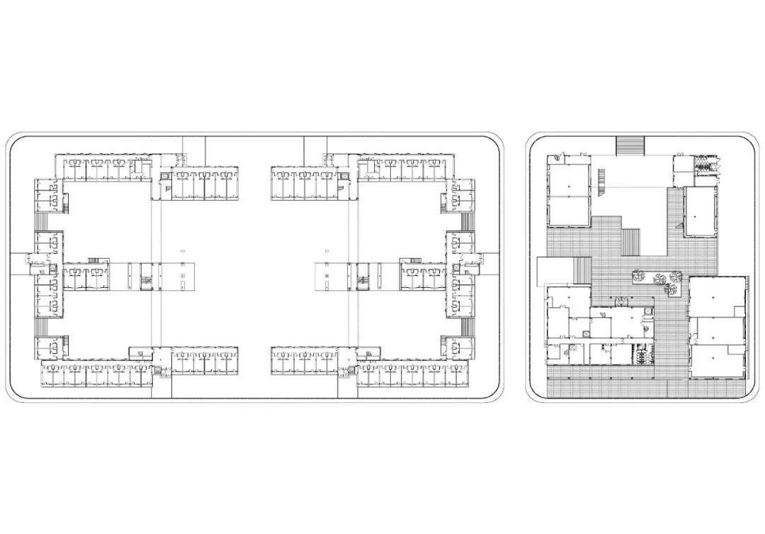
规划采用中轴对称的双“E”字型布局,分为两个指廊式的楼栋,在场地四周形成围合的界面。服务设施独立于东侧的地块,与公寓部分紧密联系又互不影响,包括餐饮中心、书店(兼咖啡厅)、健身中心和24小时无人超市。
© 战长恒
© 战长恒
二、高质发展:全装配式的建造技术创新实践
基于轻钢结构的全装配式建造体系,主体实现零湿作业。在集成地面、集成墙面、集成吊顶、生态门窗、快装给水、薄法排水、集成卫浴、集成厨房八个方面,综合运用最先进的装配式建筑技术。公寓采用3.6米模数和集成卫浴,外装修和内装修板材和门窗均采用标准构件,外墙采用夹心保温铝板。
装配体系分解示意
© 闫嘉鑫
三、绿色低碳:基于属地的生态技术创新运用
采用适宜地方的生态节能策略,达到绿色三星级,在生态本底修复、绿色永续材料、公共配套共享、环境友好营建方面亮点突出。采取低影响开发策略,建筑底层架空,恢复场地“海绵”功能,设置了下沉式的景观庭园和多个标高层次的休闲空间。
剖面图
© 战长恒
© 战长恒
四、信息智能:全生命周期的智慧技术创新融合
构建全生命周期SOP-BIM运维平台和基于云技术的“透明雄安”大数据平台,采用IBMS一键式管理系统,实现智慧设计、智慧建造、智慧运行、智慧服务一体化。室内空气质量达到芬兰S1级标准,居室提供新风并经三道工序深度过滤PM2.5,采用环境智能监控,健康可视化。
© 战长恒
项目图纸
平面图
项目信息
建筑师:清华大学建筑设计研究院
地址:雄安新区,河北,中国
项目年份:2018
用地面积:20900 m2
建筑面积:22249 m2
主创建筑师:庄惟敏
设计团队:庄惟敏,章宇贲,王禹
摄影师:闫嘉鑫,战长恒
获奖情况:中勘协2019年度行业优秀勘察设计奖优秀住宅与住宅小区设计一等奖、教育部2019年度优秀工程勘察设计住宅与住宅小区一等奖、中国建筑学会建筑设计奖建筑创作大奖(2009-2019)
编辑:韩爽,莫因同
*本文由清华大学建筑设计研究院投稿,标题及板式由编辑编排
转载或任何形式的引用请联系设计团队
点亮“在看”和“点赞”,
将创意灵感放在第一位👇






已展示全部
更多功能等你开启...