
近十年来,伴随着经济的腾飞与高速城市化,剧场如雨后春笋般在中国遍地开花。多数剧场外表夸张、功能单一,且远离大众而无法真正融入城市生活,形成一种公共资源上的极大浪费。OPEN通过竞赛赢得了深圳坪山新区剧院的设计项目,批判地去研究和看待中国剧院的发展历程,并由此出发探索演艺建筑的一种新的可能。ArchDaily对OPEN建筑事务所主创建筑师李虎和黄文菁进行了采访,请观看视频后阅读采访内容。
视频拍摄:曾天培
Q:如何理解深圳坪山区?如何理解这个项目定位?如何看待城市中的文化建筑?
李虎&黄文菁:坪山是深圳这个蓬勃发展的超级城市的一个新区,上世纪90年代这里经历了以工业为驱动的粗放发展,目前正在逐渐向一个更宜居、更平衡的城市环境发展。坪山大剧院是新区里重要的文化建筑之一,它被赋予推动地区文化发展的使命。
我们其实是把这个剧院当作一个“演艺及市民文化中心”来设计的。在2013年参加这个项目的竞赛时,我们看到随着经济的发展,人们对有文化内涵的更美好的生活有了新的需求,在政府的主导下,中国大大小小的城市都在很短的时间里修建了很多新的大剧院。然而伴随这个进步也出现了新的问题,例如多数的大剧院都是功能单一,使用率比较低,尤其是在新兴的城区里。毕竟没有那么多数量的高品质的演出内容来填充这些宏大的建筑,去大剧院看正式演出的观众数量也是在逐渐培养中的,所以这些剧院的运营一般都需要政府的财政补助来维持。
© 曾天培
© 曾天培
© 曾天培
我们希望通过设计,能让政府在公共项目上投入的资源产生最大化的效益,或者说让有限的资源能够服务于尽量多的人,希望公共文化建筑能够成为日常城市公共生活的一部分,而不是少数人每个月用一次甚至更少。文化建筑不应该只属于少数的文化“精英”人群。
城市中的文化建筑,最能体现一个城市的精神,它是否包容、是否开放、是否能帮助建构人与人之间友好而健康的关系,我们觉得非常重要。公共文化建筑应该能为所有的人提供一个心灵的庇护所,觉得自己被尊重也被接纳,这些都跟身份与收入无关。
© 雷坛坛
© 曾天培
© 雷坛坛
Q:这个剧院与以往的剧院有哪些不同?哪些功能是任务书之外的功能?
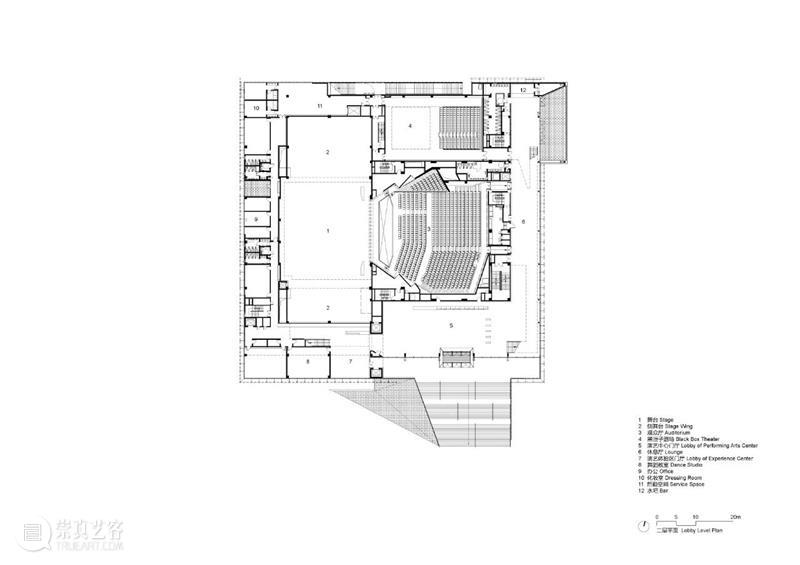
李虎&黄文菁:这个剧院的观众厅有一个很特别的地方, 就是从楼座可以直接下到池座,并且到达舞台。这给了一些表演(尤其是当代戏剧或舞蹈)更多的自由来创造戏剧性的效果,演员可以出人意料地出现在楼座的高处,从观众的身边一路下到舞台上。
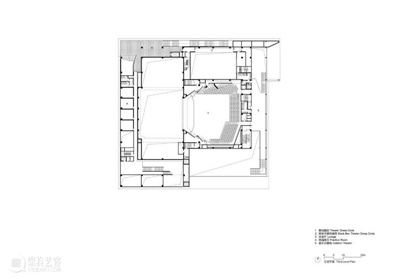
这个剧院的功能也是非常复合的。除了一个1200座的歌舞剧院和一个多功能的黑匣子剧场——我们称为“正式”的功能,它还被注入了能够服务于社区的很多“非正式”的功能,例如与表演艺术相关的教室、琴房、室外的小剧场、咖啡厅、大餐厅、可以承办活动的屋顶仪式空间等等。这些“非正式”的功能,很多是任务书之外,或者是通过调整任务书的内容使空间多功能化而出现的。
© 雷坛坛
© 雷坛坛
© 曾天培
© 雷坛坛
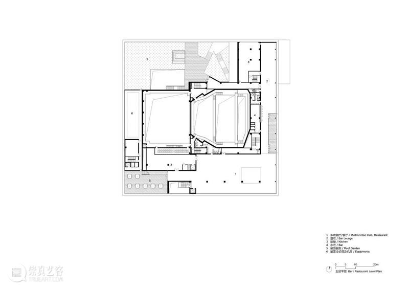
另外一个特别的地方是,这个剧院内部包含着一个公共的花园和步道系统,从东面的城市广场开始,公共步道可以让人穿过一系列平台花园,直至最高处的完全开敞的屋顶花园(其设计受启发于坪山当地的传统民居大万世居)。在没有正式演出的时候,市民也可以很方便地使用这栋建筑。没有演出票的人,也可以享受与建筑融为一体的这些丰富的公共花园。

流线分析图
© 曾天培
© 雷坛坛
© 雷坛坛
© 雷坛坛
Q:设计是从何入手的?有很大的悬挑、以及一系列公共步道,是不是在设计中最开始介入的剖面设计?
李虎&黄文菁:设计是在很多因素的共同作用之下发生的。高品质的剧院本身是一种比较复杂的建筑类型,有很多专业技术问题需要解决。除了创造一个特别的观众厅和观演体验,我们花了特别多的心思来考虑如何让通常会让大家觉得“高高在上“的大剧院有一种“平易近人”和“欢迎你来”的姿态。
在剧场观众厅和台塔形成的空间“内核”之外,我们包裹了一圈与表演艺术相关但可以服务于社区的空间。整个设计在一系列相关问题的作用下不断演进:如何解决内核与外沿空间之间的关系,如何把市民引入到建筑中去,如何把自然带进建筑里。

流线分析图
© 雷坛坛
© 雷坛坛
Q:公共步道的流线是怎样的?从平面到立体,形成怎样的序列,希望创造什么样故事?
李虎&黄文菁:公共步道有如中国园林里漫游的廊道,迂回曲折,步移景异,可以到达所有的公共空间。简单地说,步道开始于建筑东侧的城市广场。建筑的二层沿着东广场有一个连续的出挑,在黑匣子这里出挑达到十米。在亚热带炙热的阳光和雨天里,这部分有屋顶的广场空间格外舒适诱人。从这里绕到建筑北侧,一部宽敞的室外楼梯,把规整的建筑体量斜向切开,引人向上。
轴测图
© 雷坛坛
红色屋顶下的室外小剧场,是个停留休憩或者轻松排练的地方。转过来,之字形的坡道,穿过草地带着人上到屋顶花园,这里视野豁然开朗。从地面斜向升起的一个菱形的光筒形成一个小舞台,前面的草坪可以举行婚礼等活动。平日里,屋顶是属于所有人的花园。
© 曾天培
© 雷坛坛
© 雷坛坛
Q:立面是多孔折板,为什么选择这样的肌理?
李虎&黄文菁:深圳位于亚热带,炙热的阳光是机电系统的巨大负担。V字形的穿孔遮阳板是经过精心设计的,上表面的穿孔率低,遮挡住大部分直射阳光不进入室内,下表面的穿孔率高,让室内向外的视线能够尽可能地看透。同时,V字形状也增加了遮阳板的强度,更好地抵抗夏季台风的威胁。

© 曾天培

© 雷坛坛
Q:为什么选择蓝色和橙色?
李虎&黄文菁:蓝色,是我们向海洋文化的致意,也是坪山当地客家人特有的蓝布的颜色。橙红色的木板,包裹出建筑内核的大剧场观众厅和台塔的体量,温暖而醒目。
© 雷坛坛
© 雷坛坛
© 雷坛坛
© 雷坛坛
© 雷坛坛
© 雷坛坛
Q:坪山剧院可以为人群带来什么?可以为城市带来什么?对未来的使用和发展有什么看法?
李虎&黄文菁:从投入使用至今,坪山大剧院的运营者已经为观众们带来了数场品质极高的演出,让坪山这个昔日的文化荒漠有了一个全新的文化地标。在没有演出的时候,这里也是一个非常吸引人的公共场所,东侧广场像一个市民舞台,从晨练到广场舞到在雾喷里嬉戏的孩童,一天的各个时候这里都上演着市民们生活的戏剧。

© 曾天培
项目图纸
体态生成
总平面图
二层平面图
三层平面图
五层平面图
剖面图
项目信息
建筑师:Open建筑事务所
地址:坪山区,深圳,中国
项目年份:2019
建筑面积:23,542平方米
占地面积:14,302平方米
功能:1200座剧场,260座黑盒子剧场,舞蹈教室,排练教室,琴房,室外小剧场,屋顶花园,咖啡厅,餐厅
甲方:深圳市坪山区人民政府
代建方:招商地产
主持建筑师:李虎,黄文菁
设计团队:叶青(项目建筑师),周亭婷(项目建筑师),张汉仰,韩如意,邢舒,罗韧,Andrea Antonucci, 孙心莹,张畅,贾瀚,吴南芃,张浩,崔雨柔,Angela Nodari
合作设计院:深圳欧博工程设计顾问有限公司(项目负责人:丁荣,刘振锋)
幕墙顾问:上海旭密林幕墙有限公司
剧场及声学顾问:黄展春剧场建筑设计顾问(北京)有限公司
舞台机械顾问:浙江大丰建筑装饰工程有限公司
照明顾问:北京优雅士照明设计有限公司
摄影师:曾天培,Jonathan Leijonhufvud(雷坛坛)
编辑:韩爽,莫因同
*本文由OPEN建筑事务所投稿,标题及板式由编辑编排
转载或任何形式的引用请联系设计团队

点亮“在看”和“点赞”,
将创意灵感放在第一位👇
已展示全部
更多功能等你开启...



