

重庆江津四面山镇——“因四面山峰围绕,沟谷纵横,皆为大山而得名。”国内著名民宿品牌大乐之野在西南地区的第一家山居民宿,就选址在这四面群山环绕之中,空崆建筑受邀为项目进行了整体设计,希望通过这个项目让人们重新认识这片隐秘的美好之地。
© ddw
© 唐徐国
项目地块位于一个开口朝西的 U 型大山坳中,落位于半山,坐东朝西,可观远山落日。原始场地上有若干户山民老宅,山民搬迁后,利用老宅的宅基新建民宿,建筑位置并无更改。而昔日山民在半山上开垦的梯田,种下的果树,都保留下来成为了我们整个场地内的人工-自然景观。
© 唐徐国
© 唐徐国
山体等高线的凹凸形成的山脊与山坳,使得不同位置的三组建筑与山形成了不同的关系,可以看得出,山民最早在这里筑基立宅的时候,是因地制宜的去顺应这样的地形环境的。所以我们在新的设计与建造过程中,希望最大限度的去延续之前的合理性,并将建筑与山的关系进行进一步的梳理,为新的使用场景提供更好的体验。

© 唐徐国
顺山路爬坡进入到场地后迎面而来的第一组建筑,在山脊凸出的位置,这里拥有最好的“看与被看”的视野,我们将其定为为“观山”区。
© 唐徐国
© 唐徐国
观山房作为酒店公区,有最便利的通达条件和最好的观山景观位,我们利用场地高差,将后勤服务等功能设置在这一区的吊层(-1层),方便组织停车卸货和实现不同流线的分流。客人停好车以后,通过红砂岩石砌楼梯来到一层的观山庭院,围绕庭院设置有活动草坪,接待前台以及景观餐厅。
© 唐徐国
© 空崆建筑
穿过前台通过楼梯可以前往二层咖啡吧和无边泳池。二层空间的水平高度,一面正对背后山体,平视可以看近处的梯田,而仰视则可以通过高窗看到山坡上的竹林;二层空间另一面完全朝西打开,视线穿过无边泳池,可以观赏远山与落日;无边泳池同时也是一块天空之镜,可以将天与云,山和雨的倒影映射。
© 唐徐国
© 唐徐国
© 唐徐国
紧邻公区的客房楼配置了 6 间山景客房和茶室,棋牌室,其场地标高与公区恰好差半层,且两个建筑之间有一定的角度,我们在中间植入了一个梯形庭院和一个联系多级标高的折返楼梯,通过这个楼梯可以去到公区与客房之间的5个标高层,上上下下也极具山城趣味。
构造草图
© 唐徐国
© 唐徐国
第二组建筑位于一个相对开敞的山坳位置,背后山势陡峭,巉岩高耸,建筑背靠山岩,成倚靠之势,是为“倚山房”,三栋小房子随山势高差的微妙变化错落布置,且具备朝西的开阔远山景观,每栋小房子包含三间带独立泡池的客房、共享客厅以及景观庭院。
© 唐徐国
© 丹丹
© 丹丹
© 唐徐国
© 唐徐国
第三组建筑位于场地的北端,这里的山坳林木丰茂清幽,山林深处有泉水终年不断,建筑落位一半隐于林木中,一半露出,是为“隐山房”。三栋L型的建筑并排,并随着地基范围产生前后错动的进退关系,这种进退关系使得进入建筑的路径变得曲折,在这条路径上,左侧是建筑,右侧是山体,路径上安排了进入建筑的入口玄关灰空间,以及局部植物花坛,进一步增加了路径上的空间收放关系和趣味性。
© 唐徐国
© 唐徐国
从入口玄关进入建筑,可以来到正对私享庭院的共享小客厅。私享庭院由L型建筑体围合而成,开口方向直面远山,且具有非常好的私密性。而三间客房,也都直面开口方向,近处的各种原生树木,中景的高耸山壁,远处的远山,构成了这一组建筑空间的景观对景层次与人的互动。
© 唐徐国
© 唐徐国
© 唐徐国
© 唐徐国
观山,倚山,隐山,是建筑与山体的三种关系,在这层关系下,建筑与自然,建筑与人,人与自然的关系都进行了重新组织和设计,建筑与空间,在这里为人们重新进入自然,认识自然,体验自然提供了新的途径和通道,形成了人与山之间关系的重构。
项目图纸
地图区位
楼梯草图
构造草图
观山房一层平面
观山房立面
观山房剖面
楼梯剖面
倚山房剖面
隐山房剖面
倚山房立面
隐山房立面
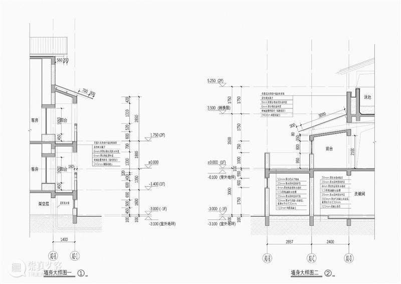
墙身大样
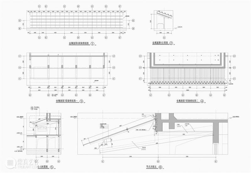
节点详图
项目信息









已展示全部
更多功能等你开启...