洛克·外滩源位于上海市中心著名的外滩北端,由一系列欧洲租界时期建造的历史建筑组成。这些建筑沿着圆明园路东侧形成了连续的街面,欧洲建筑风格与亚洲元素相结合,体现了这一时期殖民建筑的多样性。一个由国际建筑师组成的团队规划了这一地区的复兴。它将容纳办公、公寓、咖啡、餐厅和零售功能,同时向苏州河滨及周边公园展现宏伟的城市姿态。
戴卫奇普菲尔德建筑事务所受委托在这个区域的开发中修缮和改造 11 座历史建筑,值此公共空间开放之际,戴卫·奇普菲尔德担任首届 Ram Assembles 外滩建筑节艺术总监,并为专门为街区内公共空间打造了多组空间介入装置。
东立面图 © David Chipperfield Architects修缮的概念致力于是以充满尊严和风貌的方式展示这些历经岁月考验的建筑。在历史进程中,这些建筑经历了各种改建和搭建——它们都被拆除,将建筑物恢复到原来的状态。外墙经过仔细的清洁和修复,避免破坏原来的结构。为了适应新的当代功能需要,一些建筑物的现有结构在屋顶区域内的得到了扩展。从街区西南部的内庭院可以看到中实大楼和亚洲文会大楼的扩建部分。新的外墙采用“上海抹灰”抹面,与邻近的历史建筑呈现相似的品质。
中实大楼改造前后 © David Chipperfield Architects、田方方中实大楼建成于1930年,由通和洋行设计,协盛营造厂建造,是融合了新古典主义和折衷式主义风格的框架结构建筑。其基座以精细加工的米色花岗岩饰面,楼层以暖灰色的仿花岗岩粉刷饰面,整体造型沉稳端庄。入口的青铜大门至今已有近100年的历史,装饰丰富细致;门楣上的“中国实业银行”字样的残留痕迹及六层顶部塔楼立面上的“1929”标志依然清晰可见,颇具古典意味。在这座装饰艺术风格的建筑内,改造后的灵活空间可以实现一系列不同的展示概念,并和上层的体量通过新的中庭形成空间联系。亚洲文会大楼曾经是中国第一座公共博物馆,现在成为了上海上海外滩美术馆——一座当代艺术博物馆。今日所见的亚洲文会大楼完成于 1932 年,由公和洋行高级合伙人,英国建筑师 George Wilson 设计。它是一座砖混结构建筑,融合了中西文化的元素,具有典雅而精致的装饰艺术风格。
入口门两侧置有对成的八卦窗,楼体上采用了云纹、石狮等中国传统图案进行装饰;二层为石质栏杆,顶部、阳台和铁门采用中国传统图案进行装饰;三楼窗户下则悬挂标有“亚洲文会”的中文匾额。上海外滩美术馆二层门厅 © Simon Menges上海外滩美术馆二层展厅 © Simon Menges上海外滩美术馆二层展厅 © Simon Menges上海外滩美术馆四层门厅 © Simon Menges上海外滩美术馆五层门厅 © Simon Menges上海外滩美术馆五层中庭展厅 © Simon Menges上海外滩美术馆六层咖啡厅 © Simon Menges上海外滩美术馆六层咖啡厅 © Simon Menges建筑的总体形式集中表现为英国维多利亚时期且带有折衷主义倾向的英式建筑,老建筑的外墙材料使用红砖,同时在窗楣正上方有浅灰色砖雕,建筑的细部精美,三层屋面檐口有三处巴洛克风格的山花装饰。
众安·美丰大楼改造前后 © David Chipperfield Architects、田方方戴卫奇普菲尔德采用了将残留历史建筑外墙与新建筑融合,以技术手段将有保留价值的历史建筑外墙脱离原结构体,再与新建筑相结合成为其外围护墙的一部分的建造模式进行改建。此过程也被称作“结构换胆”。原通和洋行保留了三层沿街带有花饰的清水砖墙,在其围合的空间范围内贴邻建造60米高且带两层地下室的高层建筑,这种创新的处理手法在上海尚属首例。美丰洋行的三层的历史建筑立面得到了保留和修缮,并以陶土砖堆砌的形式向上增加了十一层,成为了现在的众安·美丰大楼。这座新的红砖塔楼在街区的边缘形成了一个强有力的标志物,将历史悠久的城市肌理与远处的新建高层城市融为一体。圆明园公寓建成于1904年,由爱尔德洋行设计。整个建筑表现出典型的英国安妮女王复兴风格:清水砖墙、砖雕、使用白色的粉刷和砖形成强烈的色彩对比,室内装饰豪华。
圆明园公寓改造前后 © David Chipperfield Architects、田方方安培洋行于1905年建成,由爱尔德洋行设计,是英国安妮女王式风格建筑,时称亚历山德拉大楼(Alexandra Building),其得名可能与当时的英国王后亚历山德拉有关。建筑主体为砖木结构,局部有钢筋混凝土框架,其中四层砖木混合结构,屋顶为木屋架;主楼梯为木楼梯,副楼梯为钢筋混凝土楼梯。其内部仍保留着装饰精美的楼梯、栏杆和扶手。立面局部采用变形的古典装饰符号。主立面强调竖向构图,饰有一半圆形挑出窗。清水红砖墙,砖工精细。
安培洋行改造前后 © David Chipperfield Architects、田方方安培洋行改造前后 © David Chipperfield Architects、田方方该建筑群分多个阶段建成:上海外滩美术馆于2010年开馆,历史建筑的外墙修缮工程于2011年完成。美丰大楼的外墙和内部结构与2021年完工,随后,戴卫奇普菲尔德建筑事务所又受委托设计其大堂的室内以及整个街区内巷的景观。一系列的小巷连接着东侧的历史建筑和西侧的新建住宅建筑之间形成的内部广场。作为外滩源项目的最后补充,它旨在将这些传统的内向剩余空间转变为整体公共功能和城市界面的延伸,同时为不同的公共活动和功能提供灵活空间。整个洛克·外滩源于 2023 年 9 月竣工,这也标志着戴卫奇普菲尔德建筑师事务所 17 年工作的完结。那可能是里弄和后巷,是点缀着流动小贩的街角,是某个熟悉的门廊,抑或是朋友之间适意畅谈的长凳。他们为公共与私人领域之间的互通提供了凭依。上海的传统社区保有对这些空间的珍贵记忆。在这座城市非西方的语境中,公共广场并不那么普遍,因而这些临界空间就显得更加重要。这是因为,它们提供了人与人之间交融聚汇、共享时空的场所。
——戴卫·奇普菲尔德
”

RAM Assembles 外滩建筑节
由上海外滩美术馆(RAM)与洛克·外滩源(ROCKBUND)联合发起,上海外滩投资开发(集团)有限公司指导的全新项目“RAM Assembles外滩建筑节”(RAMA外滩建筑节),于2023年9月22日正式亮相。首届特邀普利兹克奖得主、建筑师戴卫·奇普菲尔德(David Chipperfield)出任艺术总监,以“公共空间”为主题,举办百余场艺术活动和思想对谈,以此引燃建筑与设计领域的跨学科思维,丰富人们对公共空间的感知与经验,庆祝城市的多元活力。由戴卫·奇普菲尔德主持设计的上海外滩美术馆全新入口与博物院广场也于当日全面开启,迎来奇普菲尔德同洛克·外滩源长达 17 年合作的又一力作。“
场所的公共性取决于其所能承载的活动,而不仅是其建成形态。它依赖于物理环境,但同样取决于社会基础设施,譬如人与人之间的默契链接,以及分享和参与的意愿。我们希望外滩建筑节能成为启动这一进程的催化剂。戴卫·奇普菲尔德建筑师事务所的策划方案将把艺术带出博物馆、引入洛克·外滩源的日常生活。它将用城市生活的自发性和共时性消解艺 术机构中的静态观演关系。
——戴卫·奇普菲尔德
”
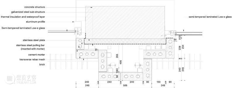
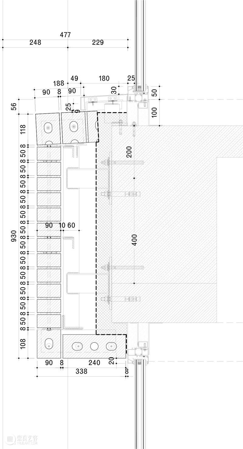
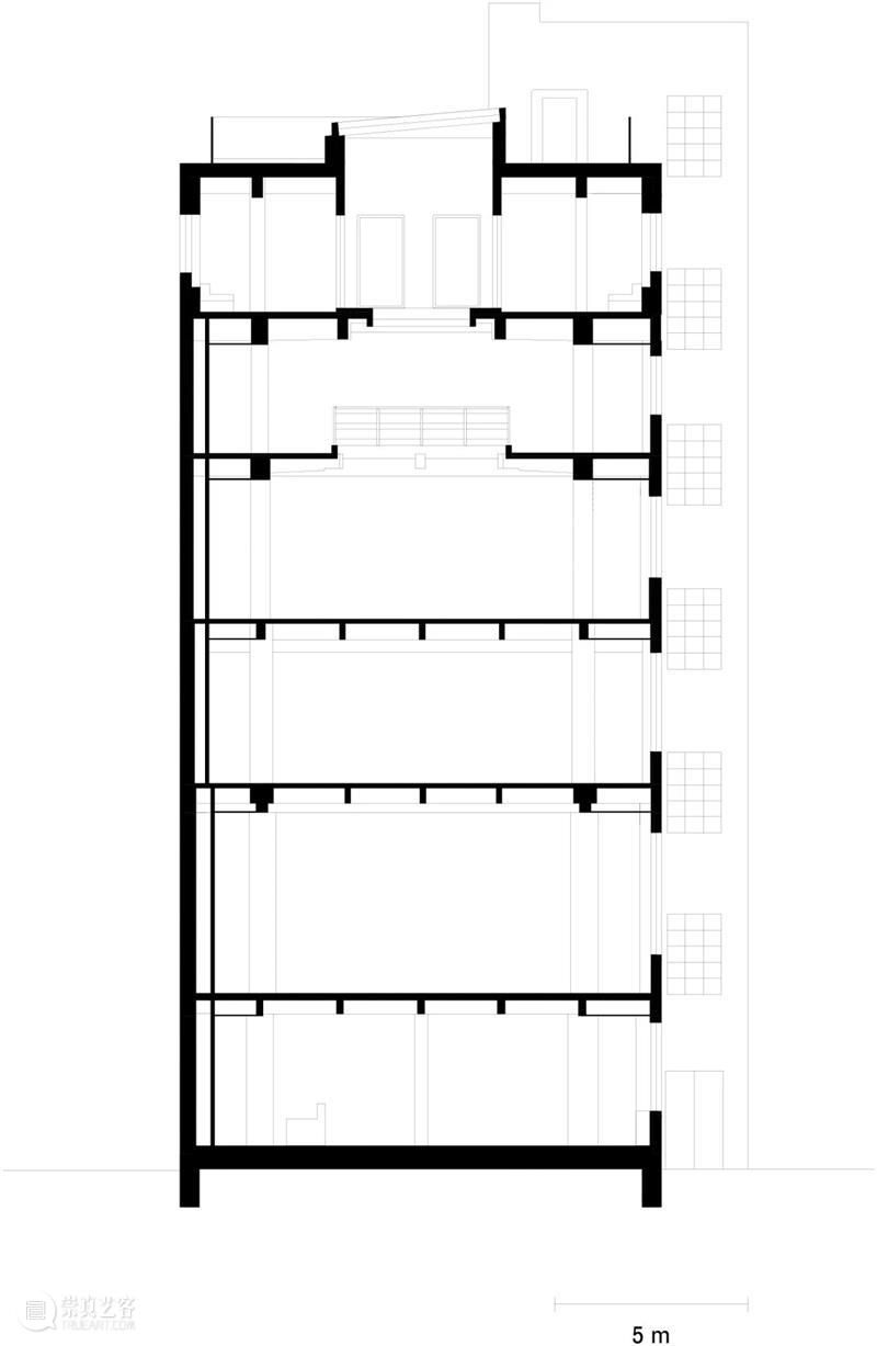
总平面图 © David Chipperfield Architects南立面图 © David Chipperfield Architects西立面图 © David Chipperfield Architects上海外滩美术馆一层平面图 © David Chipperfield Architects上海外滩美术馆二层平面图 © David Chipperfield Architects上海外滩美术馆五层平面图 © David Chipperfield Architects上海外滩美术馆六层平面图 © David Chipperfield Architects东立面图 © David Chipperfield Architects上海外滩美术馆西立面图 © David Chipperfield Architects上海外滩美术馆AA剖面图 © David Chipperfield Architects上海外滩美术馆BB 剖面图 © David Chipperfield Architects上海外滩美术馆CC 剖面图 © David Chipperfield Architects众安·美丰大楼一层平面图 © David Chipperfield Architects众安·美丰大楼五层平面图 © David Chipperfield Architects众安·美丰大楼八层平面图 © David Chipperfield Architects众安·美丰大楼十三层平面图 © David Chipperfield Architects众安·美丰大楼东立面图 © David Chipperfield Architects众安·美丰大楼南立面图 © David Chipperfield Architects众安·美丰大楼剖面图 © David Chipperfield Architects众安·美丰大楼幕墙立面图、平面图、剖面图 © David Chipperfield Architects幕墙节点一 © David Chipperfield Architects众安·美丰大楼幕墙节点二 © David Chipperfield Architects